obsah
|
zápatí
Jihomoravský kraj
www.ezak.cz
hlavní stránka
»
veřejné zakázky
»
Zpracování PD „Expozice Pravěk a středověk Vyškovska“ a výkon autorského dozoru
»
Vysvětlení ZD č. 1
Pro veřejnost
Předběžné tržní konzultace
Profily zadavatelů
Katalog smluv
Upozorňování na nové VZ
Zadávací řízení
Předběžná oznámení
Veřejné zakázky
Vyhledávání
DNS
Přihlášení
Přihlásit se
Registrace
Test nastavení prohlížeče
Zapomenuté heslo
Registrovat dodavatele
Agregátor zakázek:
FEN
FEN CDD
navigace
|
zápatí
Bezpečnostní upozornění
x
Blíží se konec Vašeho sezení. Pokud neprovedete v následující minutě žádnou akci, budete automaticky odhlášen(a).
x
x
x
Přijatá zpráva - vysvětlení, doplnění, změna dokumentace
Zadávací řízení
Zpracování PD „Expozice Pravěk a středověk Vyškovska“ a výkon autorského dozoru
Odesílatel
Ivona Peštálová
Organizace odesílatele
TENDERA partners, s.r.o. [IČO: 08668477]
Příjemce
Všichni (včetně veřejnosti)
Datum
24.02.2022 13:36:15
Předmět
Vysvětlení ZD č. 1
Vysvětlení ZD č. 1
Přílohy
Vysvětlení ZD č. 1_signed.pdf
(209,19 KiB)
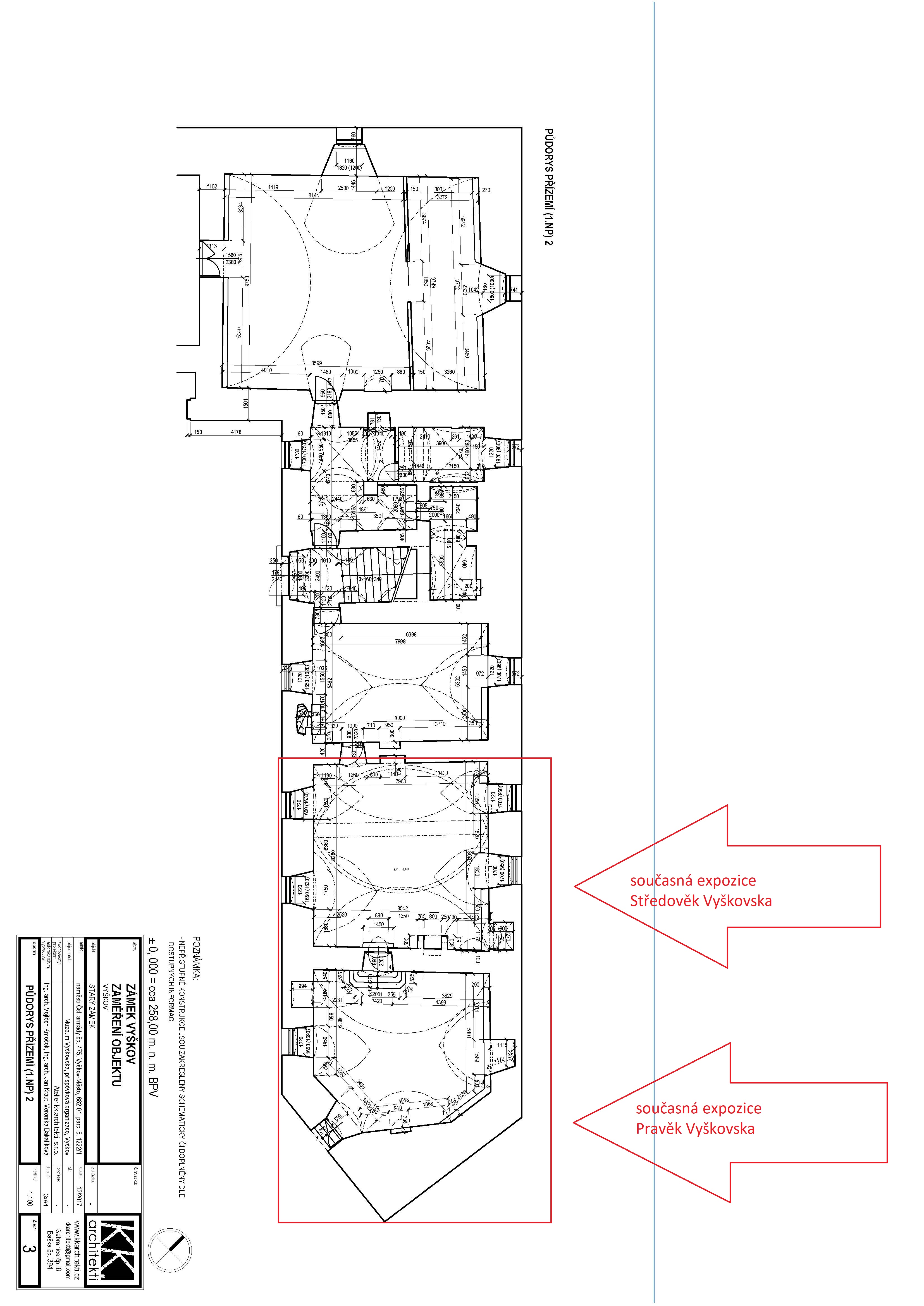
Příloha VPN č. 4_Plánek prostor.jpg
(1,43 MiB)
navigace
|
obsah
2006 – 2025 © Jihomoravský kraj
Prohlášení o přístupnosti
Cookies
Manuály
QCM - o software